ATA 27-62 Auto-Speed Brakes (Arm Fault)

More
2 years 10 months ago - 2 years 10 months ago #956 by Mark
Crew report of "Auto Speed Brake" EICAS warning and overhead annunciator when arming system for landing.
  
  
 
  
  
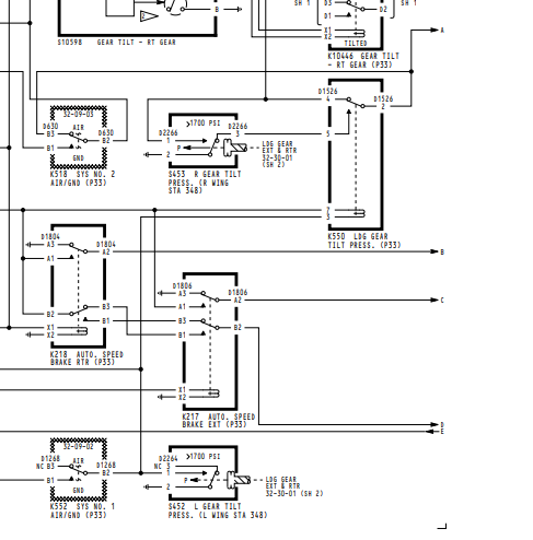
Not to be taken as 100%, but this problem is almost always caused by one of the two landing gear tilt pressure switches.
  
  
 
  
  
They are located just outboard of the gear. One on each side.
  
  
 
  
  
 
  
  
If the light and EICAS system see a ground from the right gear pressure switch, they will alert the crew of an "out of configuation" condition.

Both pressure switches can be functional checked from relay K550.
  
  
 
  
  
With center hydraulic pressure off, Pin 5 will show a ground, pin 3 (ground path for relay coil) will not.
With pressure on, these two readings flip-flop. Pin 5 open - Pin 3 will have a ground.
  
  
Just follow "A" (to the left of S371) from one image to the next.....
  
 
  
  
 
  
  
The problem on this aircraft was the left pressure switch. It never would close with system pressure. Relay K550 stayed relaxed and the ground path for the light and EICAS was provided through (the activated) right pressure switch (pins 1 & 2).
  
 
Last edit: 2 years 10 months ago by Mark.

Please Log in or Create an account to join the conversation.

Time to create page: 0.707 seconds