ATA 21-58, Aft Exhaust Cooling Fan

More
3 years 9 months ago - 3 years 9 months ago #808 by Mark
EICAS warning.....
  
  
 
  
  
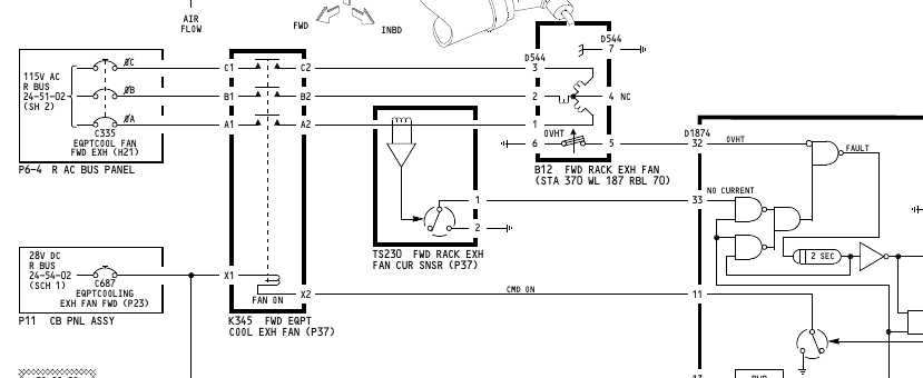
The system uses a three phase contactor to supply power to the fan. There is a current sensor attached to phase "A" on the load side of the contactor. If the monitor warning card does not see current flow to the fan, it drops the ground to the contactor which goes open and drops all power to the fan motor windings.
  
  
 
Drawing is for forward fan, but the theory is the same
  
  
With the breaker out (relay relaxed and no three phase power) I verified that the motor windings were open from the load side of the contactor. Actually..... I screwed up and shot them to ground. If you look at the print, they're hooked to each other at the motor and not to ground. I had 15M ohms which is still pretty high. I called for a fan change. Hopefully, I'm still correct with my thinking????
  
  
 
  
  
I tried to ground terminal 1 of the current sensor in an effort to fool the card. That was a failure as the card must be looking for an open instead of a ground for current verification.
  
  
 
  
  
Being a daring idiot..... I  pulled the card, pulled the breaker, and connected a lead to the output side of the contactor. I placed the breaker in and shoved in the card to see just how long the card took to disconnect the power. It took about 25 seconds. (You can hear the contactor "click" around 13 seconds into the video when I finally got the card seated.
  
  
  
  
This is "really" "stepping out of the box" and shouldn't be tried unless you are absolutely certain as to what you are doing!!!
Last edit: 3 years 9 months ago by Mark.

Please Log in or Create an account to join the conversation.

More
3 years 9 months ago #812 by Mark
A replacement fan corrected issue.

Please Log in or Create an account to join the conversation.

Time to create page: 0.827 seconds